1017 16th Ave Lewiston, ID 83501
Directions
Google/Apple maps
Price: $350,000
Beds: 3
Baths: 2
Garages: 0
Type: Single Family Residence
Area: Lewiston - 2135
Land Size: Standard Lot 6000-9999 SF
SqFt: 1890
Acres: 0.163
Subdivision: 0 Not Applicable
Year Built: 1964
Construction: Frame, Vinyl Siding
Lot Size: 142x50 x 142x50
Includes
Fireplace: Other
Air Conditioned: true
Water: City Service
Heating: Forced Air, Natural Gas
Schools
School District: Lewiston Independent School District #1
Sr High School: Lewiston
Jr High School: Jenifer
Grade School: Webster
Contact for more details:
A-Team Consultants
1099 S Wells St #200, Meridian, ID 83642
Phone: 208.761.1735 Email: info@ateamboise.com
1099 S Wells St #200, Meridian, ID 83642
Phone: 208.761.1735 Email: info@ateamboise.com
Description
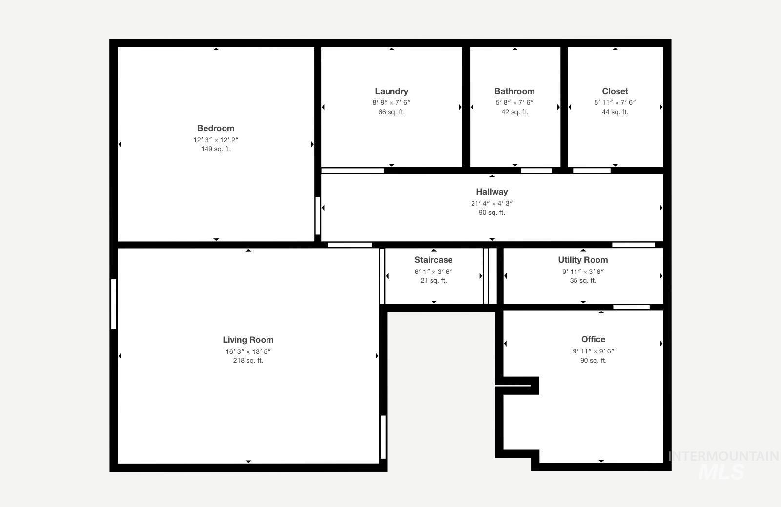
This charming home is so spacious and perfect for anyone looking to combine charm, convenience and endless potential! Lovely hardwood floors, classic built-ins, vinyl windows, and a thouhtful floorplan. This 3 bedroom home has a bonus/hobby room for office or potential 4th bedroom as well as 2 living room spaces! Huge walk-in pantry, covered deck and large backyard for entertaining or gardening, fenced backyard & 2 storage sheds. Great potential for a DUPLEX or extended family living floorplan. Walking distance to restaurants, grocery store, Webster school, and short distance to LCSC. 3D tour.
Legal Description:
LEWISTON: RIVERVIEW ADDITION Lot 10 Block 11
LEWISTON: RIVERVIEW ADDITION Lot 10 Block 11
| Listing info for this property courtesy of Silvercreek Realty Group Information deemed reliable but not guaranteed. Buyer to verify all information. All properties are subject to prior sale, change or withdrawal. Neither listing broker(s), shall be responsible for any typographical errors, misinformation, misprints and shall be held totally harmless. |






























