1152 W Recess Way Kuna, ID 83634
Directions
Meridian Rd, W Main Street, S Swan Falls, W Ash, to sub
Price: $0
Beds: 5
Baths: 2
Garages: 2
Type: Single Family Residence
Area: Kuna - 1100
Land Size: Sm Lot 5999 SF
SqFt: 2305
Age: Under Construction
Acres: 0.124
Subdivision: Chotika Subdivision
Year Built: 2026
Construction: Frame, Stone
Includes
Fireplace: Gas
Air Conditioned: true
Heating: Forced Air
Schools
School District: Kuna School District #3
Sr High School: Kuna
Jr High School: Kuna
Grade School: Kuna
Contact for more details:
A-Team Consultants
1099 S Wells St #200, Meridian, ID 83642
Phone: 208.761.1735 Email: info@ateamboise.com
1099 S Wells St #200, Meridian, ID 83642
Phone: 208.761.1735 Email: info@ateamboise.com
Description
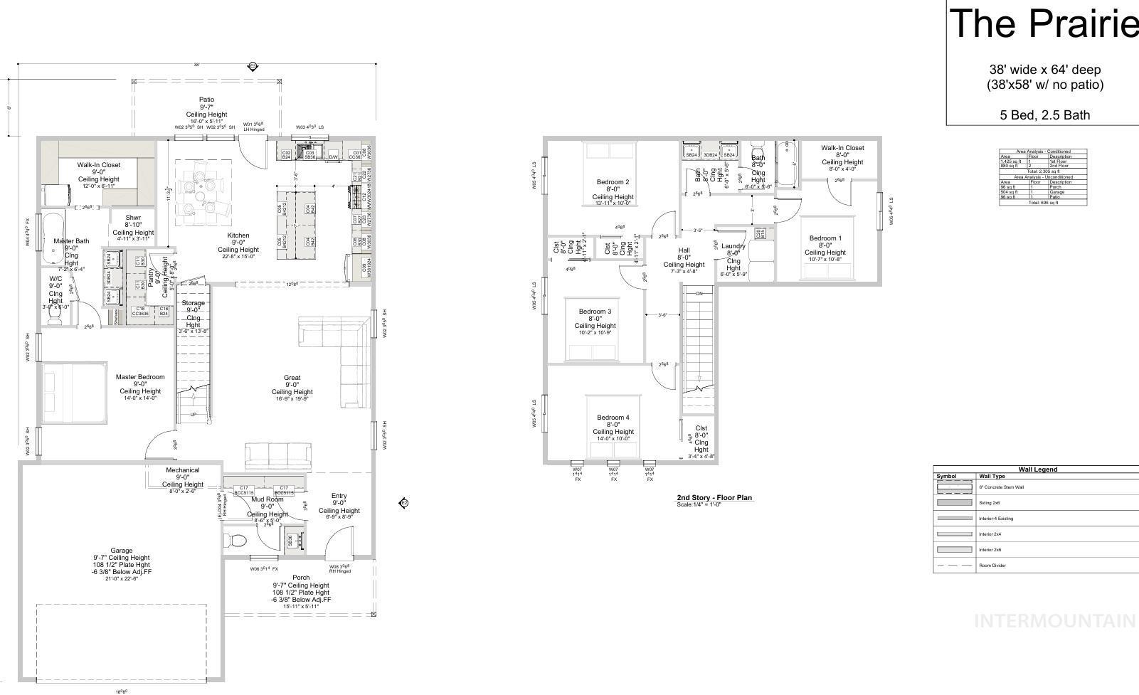
The Praire Floorplan by New Beginning Homes offers you the flexibilty of a 5 bedroom home or 3bed, office, and bonus. Genourous size Great Room with fireplace and an open kitchen dining. Full tile shower in Master suite, kitchen backsplash, and all flows with beautiful LVP flooring and upgraded carpet in bedrooms. Covered back patio height is 16ft.
Legal Description:
LOT 4 BLK 1 Chotika Sub No. 1
LOT 4 BLK 1 Chotika Sub No. 1
| Listing info for this property courtesy of Homes of Idaho Information deemed reliable but not guaranteed. Buyer to verify all information. All properties are subject to prior sale, change or withdrawal. Neither listing broker(s), shall be responsible for any typographical errors, misinformation, misprints and shall be held totally harmless. |

