Property Search Details

437 SW 3rd St. Fruitland, ID 83619

Directions

Hwy 95 / W on 3rd to corner of Kansas Avenue

Price: $295,000
Beds:
Baths: 0
Garages:
Type:
Area: Fruitland - 1725
Land Size: Sm Lot 5999 SF
SqFt: 4818
Acres: 0.08
Year Built: 1945
Construction: Frame, Stucco
Lot Size: 72.5`x50` x 72.5`x50`

Includes

Air Conditioned: true
Water: Other

Contact for more details:

A-Team Consultants
1099 S Wells St #200, Meridian, ID 83642
Phone: 208.761.1735   Email: info@ateamboise.com

Description

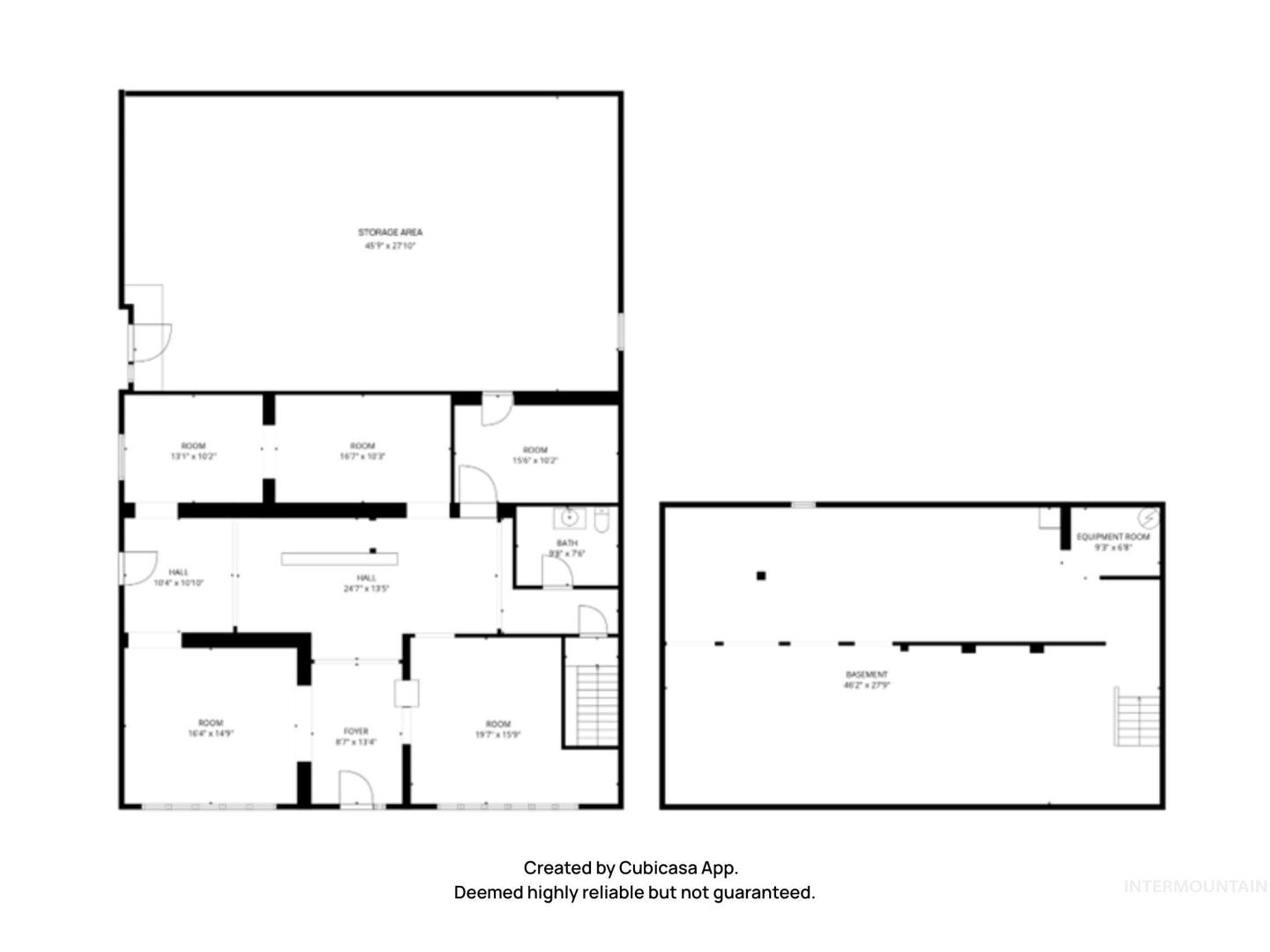
Downtown Fruitland commercial opportunity located on a high-visibility corner with CD–Downtown Commercial zoning. Excellent street presence with display windows along 3rd Street and great street parking. The main level offers approx 2,075 usable SF, currently configured into 6 separate areas suitable for office, retail, service, or seating, plus a half bath. Approx. 1,525 SF for storage in rear of the building, along with addt’l 1,218 SF of basement storage. Multiple exterior access points provide flexibility for staff and customer entry. CD Zoning allows for a variety of potential uses: coffee shop, restaurant, office, retail storefront, church, medical office, or other permitted downtown uses. Property is being sold as is, presenting strong potential for owner-users or investors seeking a flexible downtown footprint.
Legal Description:
See Lengthy Legal in Docs Tab
Listing info for this property courtesy of  Berkshire Hathaway HomeServices Silverhawk Realty  Information deemed reliable but not guaranteed. Buyer to verify all information. All properties are subject to prior sale, change or withdrawal. Neither listing broker(s), shall be responsible for any typographical errors, misinformation, misprints and shall be held totally harmless.