Property Search Details

889 Adamite Rd Kimberly, ID 83341

Directions

Use GPS

Price: $470,000
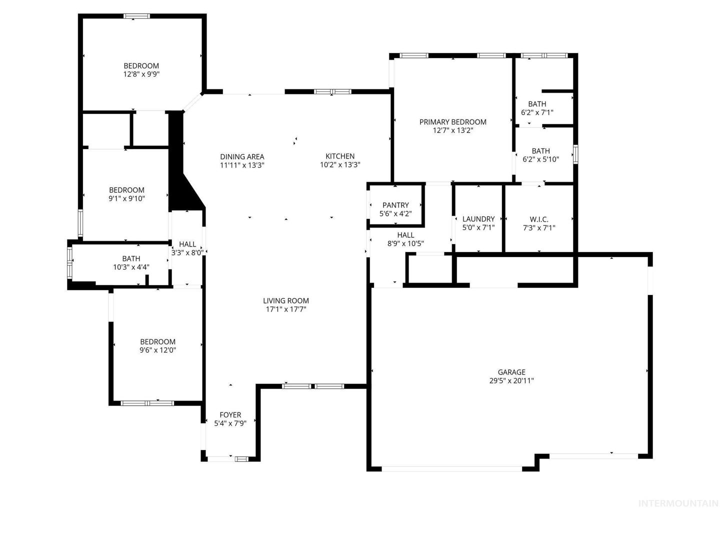
Beds: 4
Baths: 2
Garages: 3
Type: Single Family Residence
Area: Kimberly-Hansen-Murtaugh - 2025
Land Size: Standard Lot 6000-9999 SF, Sidewalks, Auto Sprink
SqFt: 1829
Age: Under Construction
Acres: 0.191
Garage Type: true
Subdivision: Olsen Farms
Year Built: 2025
Construction: Concrete, Stone, Stucco, HardiPlank Type
Lot Size: 104`x80` x 104`x80`

Includes

Air Conditioned: true
Water: City Service
Heating: Forced Air, Natural Gas

Schools

School District: Kimberly School District #414
Sr High School: Kimberly
Jr High School: Kimberly
Grade School: Kimberly

Contact for more details:

A-Team Consultants
1099 S Wells St #200, Meridian, ID 83642
Phone: 208.761.1735   Email: info@ateamboise.com

Description

November/December Completion! This beautiful 4 bedroom, 2 bath home is currently under construction in a sought-after community known for its excellent schools and welcoming atmosphere. Designed with both style and function in mind, the home will feature granite countertops, beautiful yet durable LVP flooring, a large island, and a thoughtfully designed open layout perfect for modern living. Exterior upgrades will include fencing, front sod, and backyard seed, providing a move-in ready outdoor space to enjoy. With quality finishes throughout and a convenient location, this is an incredible opportunity to own a brand-new home in one of the area’s most desirable neighborhoods.
Legal Description:
Kimberly 3 Emeralds Phase 1 Subd Lot 5 Block 2 (29-10-18 Nw)
Listing info for this property courtesy of  Keller Williams Sun Valley Southern Idaho  Information deemed reliable but not guaranteed. Buyer to verify all information. All properties are subject to prior sale, change or withdrawal. Neither listing broker(s), shall be responsible for any typographical errors, misinformation, misprints and shall be held totally harmless.