374 Joellen Dr. Twin Falls, ID 83301
Directions
Hankins Rd. and Addison Ave; South to 4th Ave E, Turn West, then S on Joellen to 374.
Price: $445,000
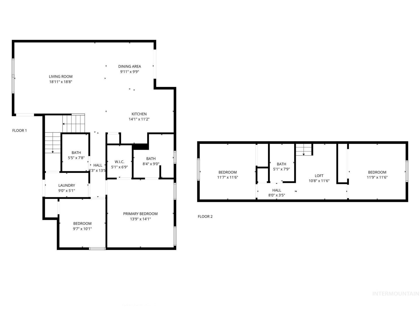
Beds: 4
Baths: 3
Garages: 2
Type: Single Family Residence
Area: Twin Falls - 2015
Land Size: Standard Lot 6000-9999 SF, Auto Sprinkler System
SqFt: 1968
Acres: 0.138
Garage Type: true
Subdivision: Eastwood Subdivision
Year Built: 2019
Construction: Vinyl Siding
Lot Size: 100`x60` x 100`x60`
Includes
Air Conditioned: true
Water: City Service
Schools
School District: Twin Falls School District #411
Sr High School: Twin Falls
Jr High School: O`Leary
Grade School: Pillar Falls
Contact for more details:
A-Team Consultants
1099 S Wells St #200, Meridian, ID 83642
Phone: 208.761.1735 Email: info@ateamboise.com
1099 S Wells St #200, Meridian, ID 83642
Phone: 208.761.1735 Email: info@ateamboise.com
Description
Welcome to this outstanding family home, ideally located in Southeast Twin Falls—close to all city amenities and just minutes from Kimberly. Thoughtfully designed with a smart layout that lives large, this residence features 4 spacious bedrooms, a loft, and 3 full bathrooms. The inviting open-concept kitchen sits at the heart of the home, seamlessly connected to the living and dining areas, and filled with natural light from large windows overlooking both the front and back yards. The primary suite offers a private retreat with a walk-in closet, dual vanity, and soaking tub. An additional bedroom is located on the main level, with two more bedrooms, a loft, and a full bath upstairs. The newly finished yard includes full fencing and automatic sprinklers, ready for outdoor enjoyment. Clean, stylish, and move-in ready—this home offers the perfect blend of comfort, function, and location.
Legal Description:
Twin Falls Eastwood Subd. Phase 5 Lot 2 Block 10 (14-10-17)
Twin Falls Eastwood Subd. Phase 5 Lot 2 Block 10 (14-10-17)
| Listing info for this property courtesy of Silvercreek Realty Group Information deemed reliable but not guaranteed. Buyer to verify all information. All properties are subject to prior sale, change or withdrawal. Neither listing broker(s), shall be responsible for any typographical errors, misinformation, misprints and shall be held totally harmless. |































