18411 N Sparkleberry Ave Nampa, ID 83687
Directions
Ustick Rd, between Northside Blvd and Franklin Blvd, N on Madison Rd
Price: $439,900
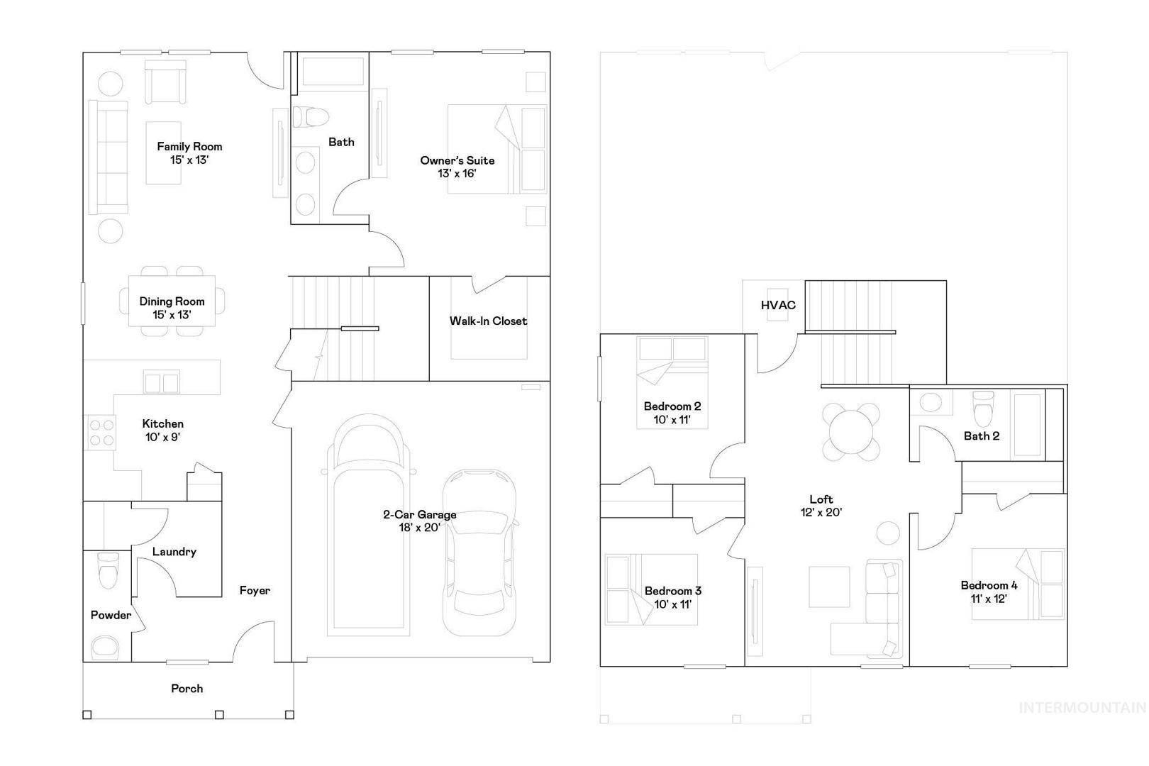
Beds: 4
Baths: 2
Garages: 2
Type: Single Family Residence
Area: Caldwell NW - 1275
Land Size: Standard Lot 6000-9999 SF, Auto Sprinkler System,
SqFt: 1874
Age: Under Construction
Acres: 0.17
Garage Type: true
Subdivision: Sweetwater Glen
Year Built: 2026
Construction: Frame, HardiPlank Type
Includes
Air Conditioned: true
Water: City Service
Heating: Forced Air
Schools
School District: Vallivue School District #139
Sr High School: Ridgevue
Jr High School: Sage Valley
Grade School: East Canyon
Contact for more details:
A-Team Consultants
1099 S Wells St #200, Meridian, ID 83642
Phone: 208.761.1735 Email: info@ateamboise.com
1099 S Wells St #200, Meridian, ID 83642
Phone: 208.761.1735 Email: info@ateamboise.com
Description
Welcome to the American Dream Series—where comfort meets value. With Lennar’s signature Everything’s Included® package, each home features a stainless-steel refrigerator, washer and dryer, window blinds, and full landscaping. The modern kitchen includes quartz countertops, white Shaker-style cabinetry, and stainless-steel appliances. Luxury vinyl plank flooring extends through the kitchen and bathrooms, paired with chrome finishes throughout. Additional highlights include a tankless water heater, garage keypad, and full aluminum gutters, offering style and efficiency in every detail. Sweetwater Glen features green spaces with walking paths, a Tot Lot, a Club House, and community pool! Just minutes to the freeway, shopping, and dining!
Legal Description:
Lot 11, Block 13, Sweetwater Glen Sub, Canyon County, Idaho
Lot 11, Block 13, Sweetwater Glen Sub, Canyon County, Idaho
| Listing info for this property courtesy of Fathom Realty Information deemed reliable but not guaranteed. Buyer to verify all information. All properties are subject to prior sale, change or withdrawal. Neither listing broker(s), shall be responsible for any typographical errors, misinformation, misprints and shall be held totally harmless. |





















