3605 & 3617 E Comstock Nampa, ID 83687
Price: $2,326,500
Beds:
Baths: 0
Garages:
Type:
Area: Nampa NW (51) - 1270
Land Size: 1/2 - .99 Acre
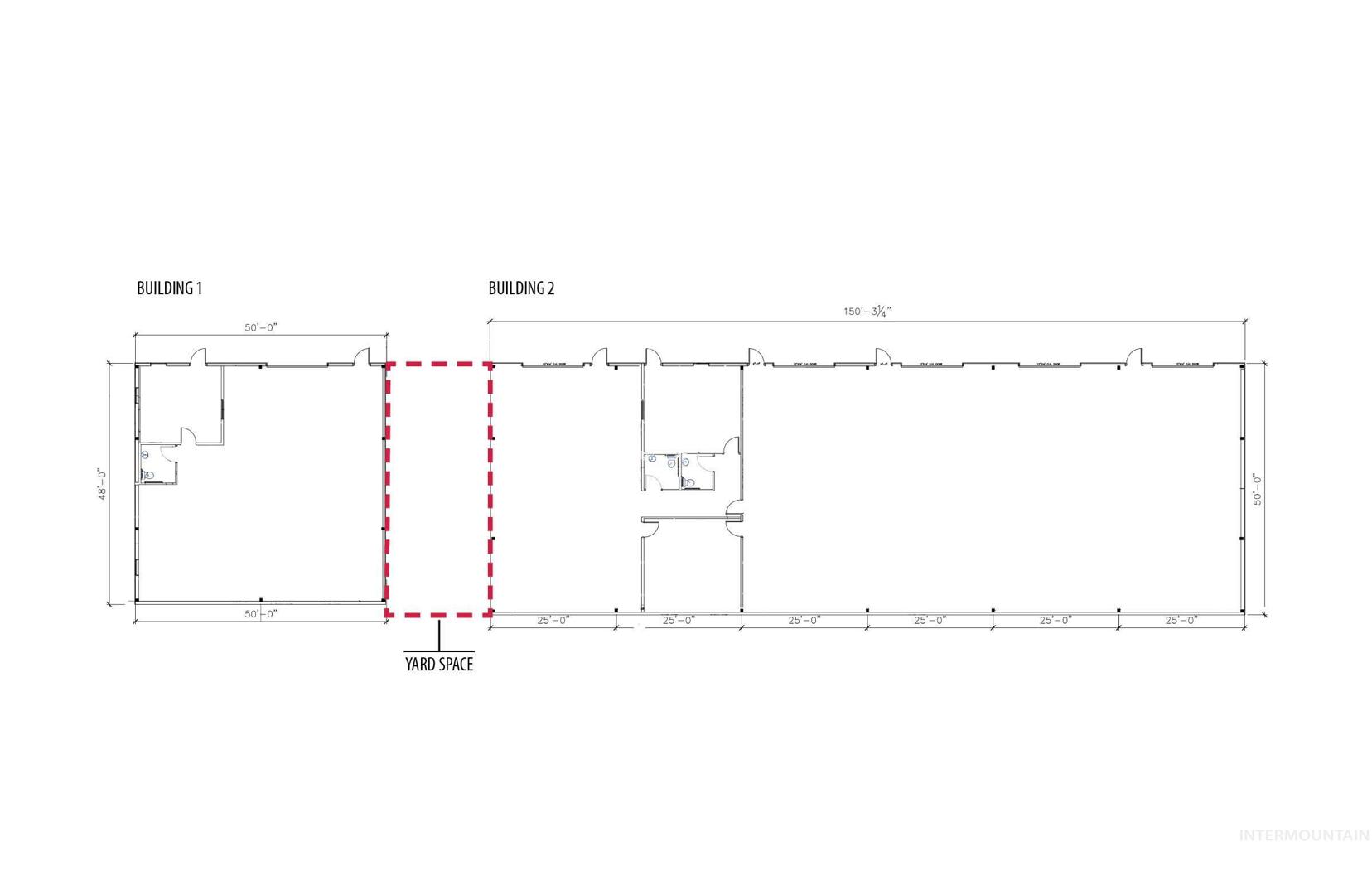
SqFt: 9900
Acres: 0.55
Year Built: 2022
Contact for more details:
A-Team Consultants
1099 S Wells St #200, Meridian, ID 83642
Phone: 208.761.1735 Email: info@ateamboise.com
1099 S Wells St #200, Meridian, ID 83642
Phone: 208.761.1735 Email: info@ateamboise.com
Description
For more information, please see marketing flyer in documents. Excellent owner-user opportunity in a stable, long term location Desirable Nampa location within Gateway Industrial Park Great power capabilities, contact agent for details Ample parking Only 5 minutes to the freeway Month-to-month tenant in Building 1 | contact agent for details; do not disturb tenant Tours by appointment only Owner willing to leaseback for up to one year after closing| Listing info for this property courtesy of TOK Commercial Information deemed reliable but not guaranteed. Buyer to verify all information. All properties are subject to prior sale, change or withdrawal. Neither listing broker(s), shall be responsible for any typographical errors, misinformation, misprints and shall be held totally harmless. |







