367 N Magnolia Place Middleton, ID 83644
Directions
I-84 West, take Middleton exit, E. Hwy 44, N. Cemetery Rd., W. Halverson, N. Magnolia
Price: $454,900
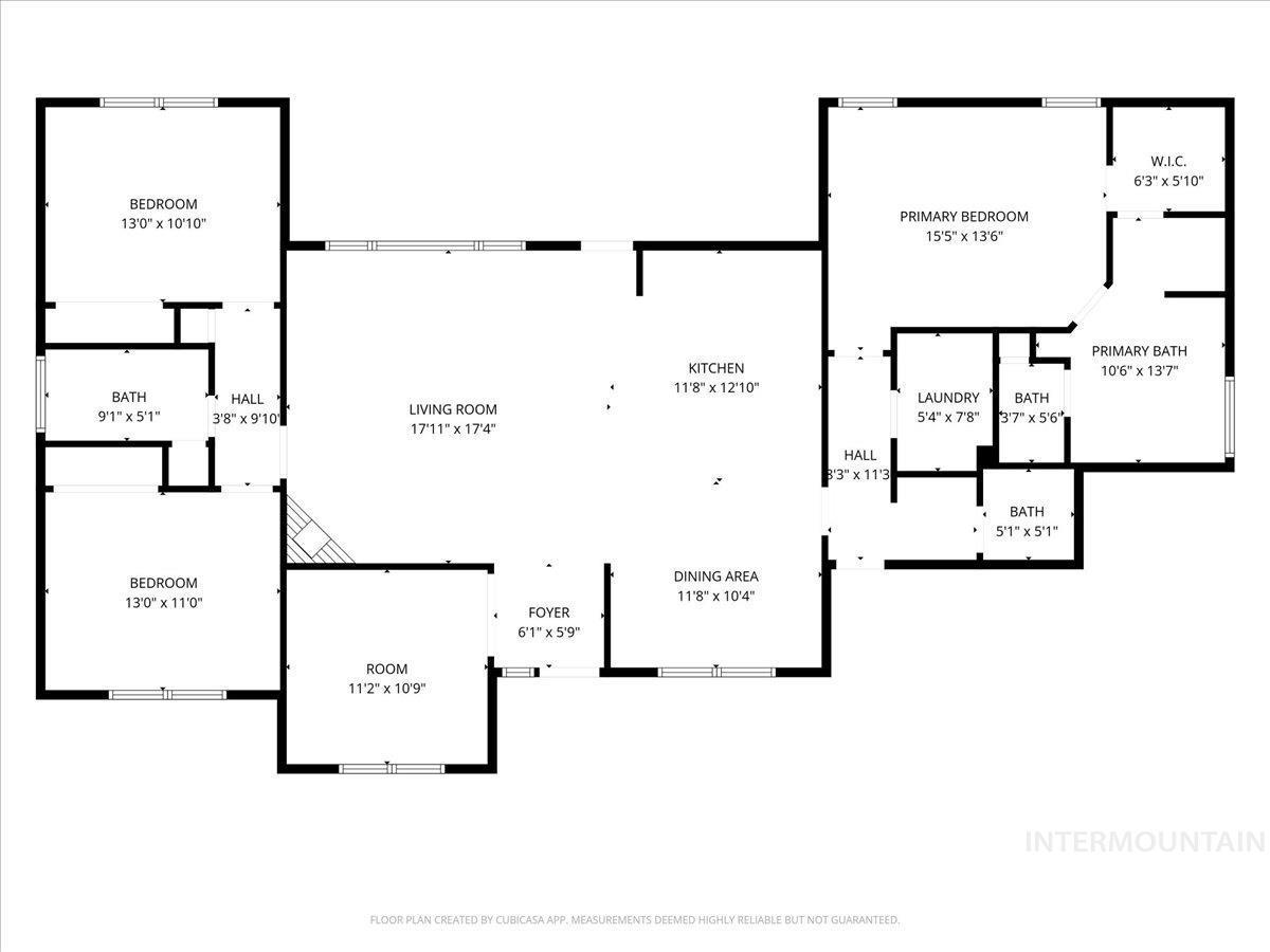
Beds: 3
Baths: 2
Garages: 3
Type: Single Family Residence
Area: Middleton - 1285
Land Size: Standard Lot 6000-9999 SF, Irrigation Available,
SqFt: 1800
Acres: 0.2
Garage Type: true
Subdivision: Westwood
Year Built: 2013
Construction: Frame, Stone
Lot Size: 97x90 x 97x90
Includes
Fireplace: One, Gas
Air Conditioned: true
Water: City Service
Heating: Forced Air, Natural Gas
Schools
School District: Middleton School District #134
Sr High School: Middleton
Jr High School: Middleton Jr
Grade School: Heights
Contact for more details:
A-Team Consultants
1099 S Wells St #200, Meridian, ID 83642
Phone: 208.761.1735 Email: info@ateamboise.com
1099 S Wells St #200, Meridian, ID 83642
Phone: 208.761.1735 Email: info@ateamboise.com
Description
Stunning, top-quality home in the beautiful Westwood Subdivision! This one-owner property has been meticulously maintained and is located in a small, quiet neighborhood close to schools and downtown amenities. Features include an open, split-bedroom floor plan with a convenient powder bath, granite countertops, and a spacious three-car garage. The exterior showcases Hardiplank siding with stone accents, a large covered patio, and full landscaping with automatic sprinklers. Inside, enjoy a cozy stone fireplace with mantle and hearth, engineered hardwood flooring in the entry, dining, and kitchen, plus a 95% efficiency gas furnace. The backyard is fully fenced with low-maintenance vinyl fencing. Don’t miss your opportunity to own this incredible home!
Legal Description:
Lot 10, Block 3, Westwood Sub.
Lot 10, Block 3, Westwood Sub.
| Listing info for this property courtesy of 1st Place Realty, LLC Information deemed reliable but not guaranteed. Buyer to verify all information. All properties are subject to prior sale, change or withdrawal. Neither listing broker(s), shall be responsible for any typographical errors, misinformation, misprints and shall be held totally harmless. |
























