Tbd Lot 2 Oregon Ave Caldwell, ID 83607
Directions
I-84, Turn left onto E Linden St, Turn right onto S Montana Ave, Turn left onto W Ash St,
Price: $149,000
Beds:
Baths: 0
Garages:
Type: Unimproved Land
Area: Caldwell NW - 1275
Land Size: Standard Lot 6000-9999 SqFt, Irrigation
SqFt:
Acres: 0.141
Subdivision: 0 Not Applic.
Contact for more details:
A-Team Consultants
1099 S Wells St #200, Meridian, ID 83642
Phone: 208.761.1735 Email: info@ateamboise.com
1099 S Wells St #200, Meridian, ID 83642
Phone: 208.761.1735 Email: info@ateamboise.com
Description
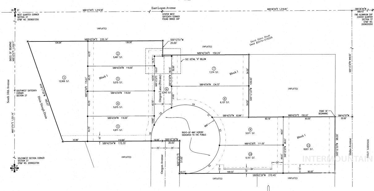
Oregon Commons is a premier 1.86-acre infill development opportunity located in an established Caldwell neighborhood. The site includes nine build-ready lots with flat, usable land and all utilities stubbed to each parcel, including water, sewer, power, and gas. Ideal for single-family homes with no HOA! Conveniently situated on Idaho Street near Logan, just minutes from downtown Caldwell, Indian Creek Plaza, College of Idaho, Fairview Golf Course, and I-84 access. Surrounded by single family homes. Buyer to verify all information with the City of Caldwell.
Legal Description:
27-4N-3W SW TX 15-A-1 IN NWSW, 27-4N-3W SW TX 20174 IN SWNESW, 27-4N-3W SW TX 34 IN NESW LESS S98.10` OF E 136` LESS TX 34-A LS RD
27-4N-3W SW TX 15-A-1 IN NWSW, 27-4N-3W SW TX 20174 IN SWNESW, 27-4N-3W SW TX 34 IN NESW LESS S98.10` OF E 136` LESS TX 34-A LS RD
| Listing info for this property courtesy of exp Realty, LLC Information deemed reliable but not guaranteed. Buyer to verify all information. All properties are subject to prior sale, change or withdrawal. Neither listing broker(s), shall be responsible for any typographical errors, misinformation, misprints and shall be held totally harmless. |









































