166 Raven Loop Cascade, ID 83611
Directions
N. on HWY 55 into Cascade, R. on Cabarton Rd., L on Raven Loop
Price: $495,000
Beds: 3
Baths: 2
Garages: 1
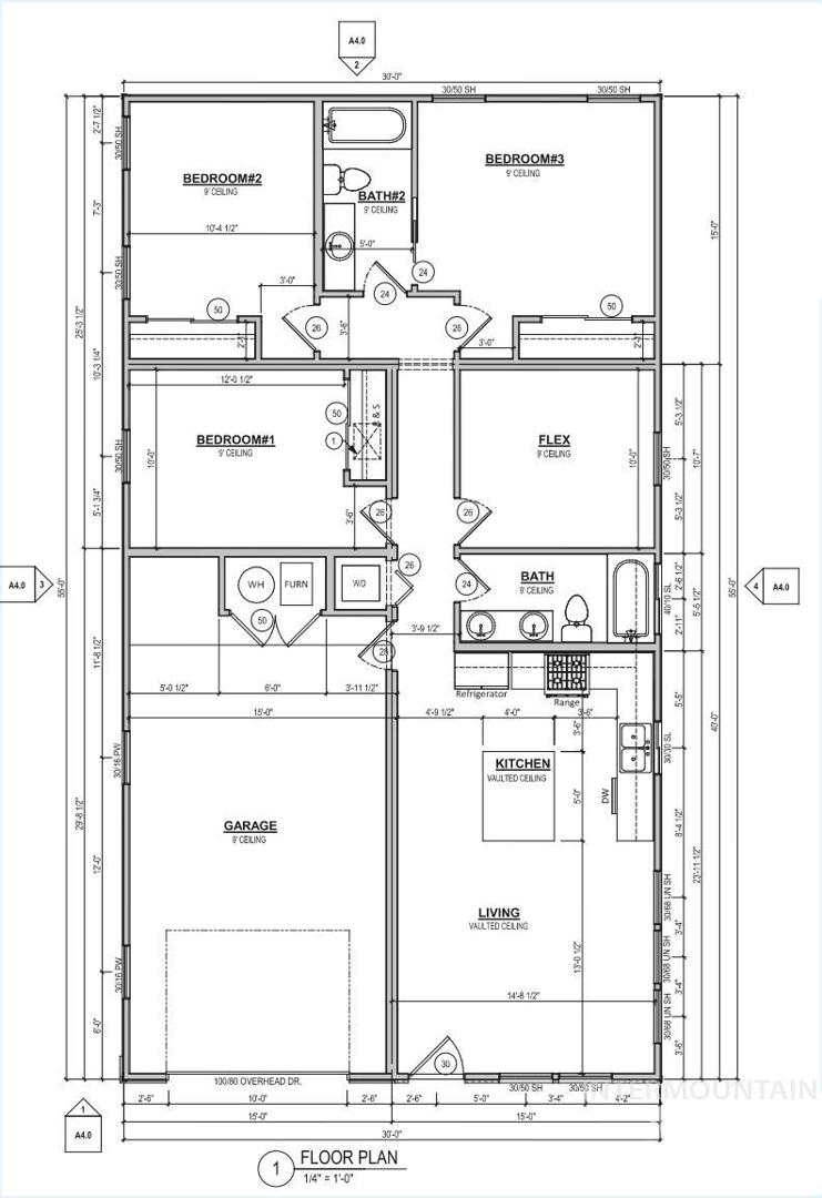
Type: Single Family Residence
Area: Cascade - 1810
Land Size: Sm Lot 5999 SF, Wooded, Winter Access
SqFt: 1227
Age: Under Construction
Acres: 0.11
Garage Type: true
Subdivision: Raven Ridge
Year Built: 2026
Construction: Concrete, Steel Siding, Stone
Lot Size: 100x50 x 100x50
Includes
Air Conditioned: true
Water: City Service
Heating: Ductless/Mini Split
Schools
School District: Cascade District #422
Sr High School: Cascade
Jr High School: Cascade Jr High
Grade School: Cascade
Contact for more details:
A-Team Consultants
1099 S Wells St #200, Meridian, ID 83642
Phone: 208.761.1735 Email: info@ateamboise.com
1099 S Wells St #200, Meridian, ID 83642
Phone: 208.761.1735 Email: info@ateamboise.com
Description
This 3-bed, 2-bath home with a versatile flex room is located in Raven Ridge, Valley County`s newest subdivision in Cascade, ID. Composed of 49 building lots and set on a private road, Raven Loop, with street lights, landscaping, bike lanes, common area, and year round access. With 1, 2, and 3 bedroom modern steel framed home options available this unique mountain modern development will provide an opportunity to enjoy Valley County`s gateway to recreational paradise. Please visit Raven Ridge Cascade`s website for more details. Secure your lot and build today!
Legal Description:
Lot 28 Raven Ridge
Lot 28 Raven Ridge
| Listing info for this property courtesy of Silvercreek Realty Group Information deemed reliable but not guaranteed. Buyer to verify all information. All properties are subject to prior sale, change or withdrawal. Neither listing broker(s), shall be responsible for any typographical errors, misinformation, misprints and shall be held totally harmless. |


