Property Search Details

6892 N Zakariah Ave Meridian, ID 83646

Directions

W on Chinden/Hwy 20-26, N on Can-Ada Rd

Price: $537,900
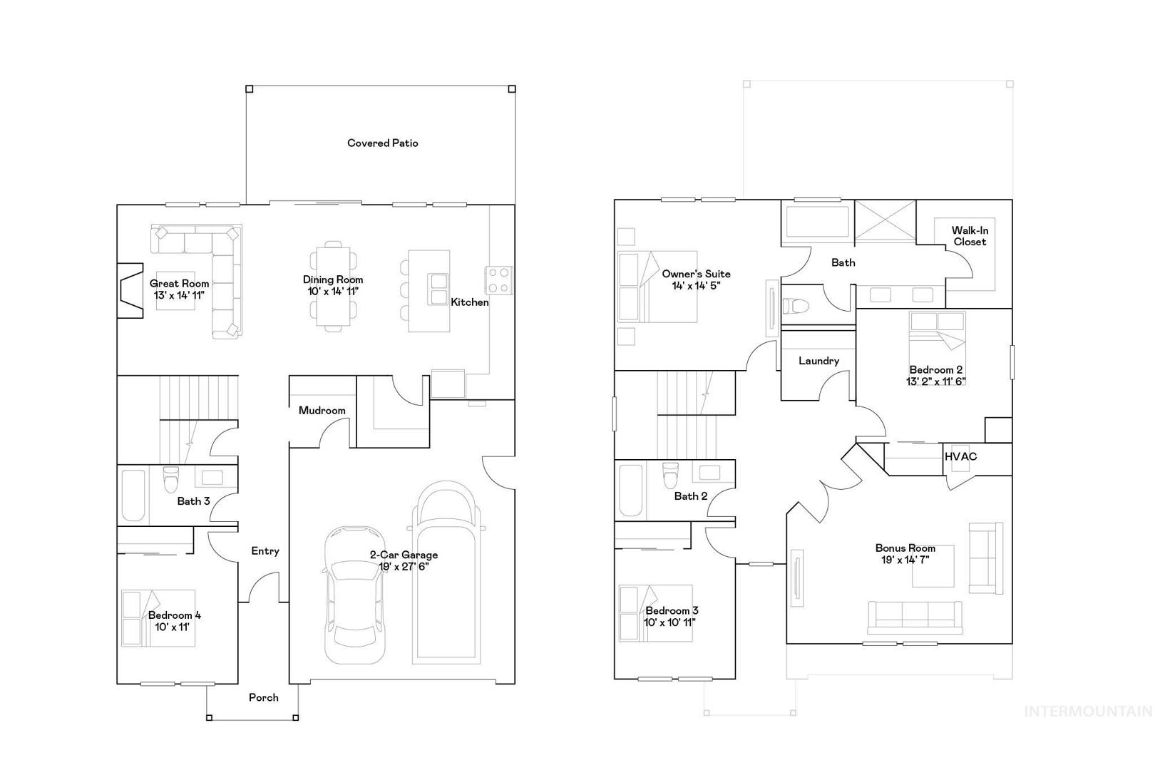
Beds: 4
Baths: 3
Garages: 2
Type: Single Family Residence
Area: Star - 0950
Land Size: Standard Lot 6000-9999 SF, Auto Sprinkler System,
SqFt: 2301
Age: Under Construction
Acres: 0.15
Garage Type: true
Subdivision: Heritage Heights
Year Built: 2026
Construction: Frame, HardiPlank Type

Includes

Fireplace: One, Gas, Insert
Air Conditioned: true
Water: City Service
Heating: Forced Air, Natural Gas

Schools

School District: West Ada School District
Sr High School: Owyhee
Jr High School: Star
Grade School: Pleasant View

Contact for more details:

A-Team Consultants
1099 S Wells St #200, Meridian, ID 83642
Phone: 208.761.1735   Email: info@ateamboise.com

Description

Luxury lives in the details with Lennar`s All-Star Series. This premium collection features 9’ ceilings on the main level, creating a bright and open living space complete with a cozy fireplace and covered patio. The gourmet kitchen offers double ovens, a gas cooktop, quartz countertops, a walk-in pantry, and designer cabinetry. You’ll also find quartz countertops in the bathrooms, with luxury vinyl plank flooring throughout the main living areas. Added touches like 6” baseboards, garage service doors, full aluminum gutters, and tankless water heaters reflect the high standards of this standout series. Heritage Heights is a vibrant neighborhood that combines scenic views, everyday convenience, and amenities designed for active, outdoor living. Residents can enjoy pickleball and bocce courts, three playgrounds, picnic areas, and a nature area with walking paths.
Legal Description:
Lot 20, Block 02, in STARPOINTE SUB - NAISMITH COMMONS, Ada County, Idaho
Listing info for this property courtesy of  Lennar Sales Corp  Information deemed reliable but not guaranteed. Buyer to verify all information. All properties are subject to prior sale, change or withdrawal. Neither listing broker(s), shall be responsible for any typographical errors, misinformation, misprints and shall be held totally harmless.