3981 N Reed St Garden City, ID 83714
Directions
From Curtis, E on Chinden, N on 40th, E on Reed St
Price: $1,784,986
Beds:
Baths: 0
Garages:
Type: Unimproved Land
Area: Garden City - 0700
Land Size: 1/2 Acre - .99 Acres
SqFt:
Acres: 0.88
Subdivision: Fairview Acres
Schools
School District: Boise School District #1
Sr High School: Boise
Jr High School: North Jr
Grade School: Whittier
Contact for more details:
A-Team Consultants
1099 S Wells St #200, Meridian, ID 83642
Phone: 208.761.1735 Email: info@ateamboise.com
1099 S Wells St #200, Meridian, ID 83642
Phone: 208.761.1735 Email: info@ateamboise.com
Description
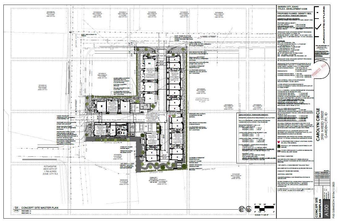
Carolyn Circle presents an exceptional investment opportunity in Garden City’s rapidly growing real estate market, offering an A+ location just steps from the Boise River & Greenbelt & minutes from Downtown Boise. This high-end townhome & multifamily development includes 29 premium units across 22,055 sq ft of refined living space & is fully entitled, with construction docs near completion. Residents will enjoy immediate access to scenic trails, wineries, craft breweries, live music, river floating, & a vibrant boardwalk lifestyle. The project’s appeal is further elevated by Garden City’s major transformation, driven by significant nearby developments. These include the College of Western Idaho River District campus opening in 2027, the $1.17 billion St. Luke’s Health System expansion, & the 50-acre Park at Expo Idaho set to open in 2026. Proximity to Boise’s USL professional soccer stadium, major highways, parks, & cultural venues enhances accessibility. Priced attractively amid Idaho’s strong population.
Legal Description:
Lots 10 & 11 Exc Deed To Garden City Blk 1 Fairview Acres # 7 #869943 Vin 70244Ckds3151 Tl 230751595 & Par #0096 Of Lots 12 & 13 Blk 1 Fairview Acres Sub 7 #0095 S Vin 60Ck4tu449 Tl 220813813
Lots 10 & 11 Exc Deed To Garden City Blk 1 Fairview Acres # 7 #869943 Vin 70244Ckds3151 Tl 230751595 & Par #0096 Of Lots 12 & 13 Blk 1 Fairview Acres Sub 7 #0095 S Vin 60Ck4tu449 Tl 220813813
| Listing info for this property courtesy of 208 properties Realty Group Information deemed reliable but not guaranteed. Buyer to verify all information. All properties are subject to prior sale, change or withdrawal. Neither listing broker(s), shall be responsible for any typographical errors, misinformation, misprints and shall be held totally harmless. |

















