227 Wheatland Ct Moscow, ID 83843
Directions
From hwy 8 head North on Mountain View RD, take a left (east) onto Wheatland. 1st unit when you pull in on the left.
Price: $459,000
Beds: 4
Baths: 2
Garages: 1
Type: Single Family Residence
Area: Moscow - 2070
Land Size: Sm Lot 5999 SF
SqFt: 1920
Acres: 0.07
Garage Type: true
Subdivision: 0 Not Applicable
Year Built: 2022
Construction: Frame
Lot Size: 89.96`x33.5` x 89.96`x33.5`
Includes
Air Conditioned: true
Water: City Service
Heating: Forced Air, Natural Gas
Schools
School District: Moscow School District #281
Sr High School: Moscow
Jr High School: Moscow
Grade School: McDonald
Contact for more details:
A-Team Consultants
1099 S Wells St #200, Meridian, ID 83642
Phone: 208.761.1735 Email: info@ateamboise.com
1099 S Wells St #200, Meridian, ID 83642
Phone: 208.761.1735 Email: info@ateamboise.com
Description
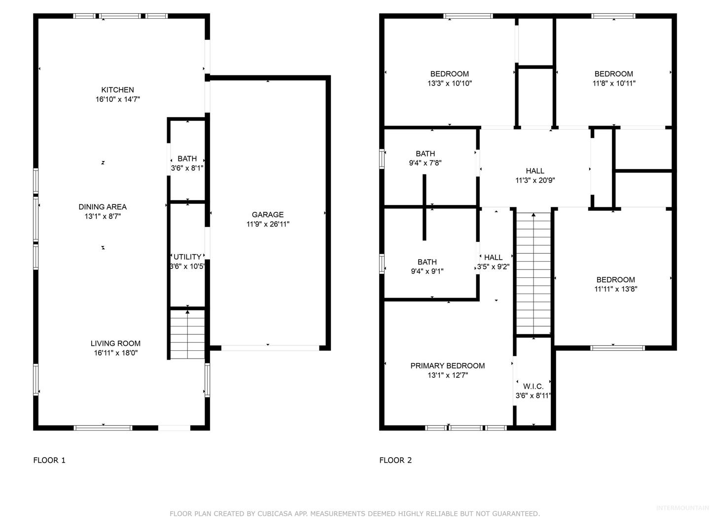
This beautifully designed 2-level home, built in 2022, features 4 bedrooms and 2.5 bathrooms with a bright and spacious layout. The main floor offers an open-concept living, dining, and kitchen area—perfect for gatherings and everyday living. A convenient half bath and deep single-car garage add function to the thoughtfully planned space. Upstairs, you’ll find all four bedrooms together, including a spacious primary suite complete with a private ensuite bath and walk-in closet. Three additional bedrooms share a full bathroom. The second-floor laundry adds ease and efficiency to everyday living. With modern finishes, energy-efficient systems, like a hot water circulator, and low-maintenance construction, this move-in ready home combines style and comfort in one perfect package.
Legal Description:
Lot 2 of the Replat of Lot 1 Block 1 of Harvest Hills First Addition
Lot 2 of the Replat of Lot 1 Block 1 of Harvest Hills First Addition
| Listing info for this property courtesy of Moscow Realty Information deemed reliable but not guaranteed. Buyer to verify all information. All properties are subject to prior sale, change or withdrawal. Neither listing broker(s), shall be responsible for any typographical errors, misinformation, misprints and shall be held totally harmless. |






























