1110 & 1120 N Dawn Dr Boise, ID 83713
Directions
From Fairview, S on Dawn Dr
Price: $330,000
Beds:
Baths: 0
Garages:
Type: Unimproved Land
Area: Boise West - 0600
Land Size: 10000 SF - .49 Acres
SqFt:
Acres: 0.35
Subdivision: Eagleson Beatty
Lot Size: 104x141 x 104x141
Includes
Water: City Service
Contact for more details:
A-Team Consultants
1099 S Wells St #200, Meridian, ID 83642
Phone: 208.761.1735 Email: info@ateamboise.com
1099 S Wells St #200, Meridian, ID 83642
Phone: 208.761.1735 Email: info@ateamboise.com
Description
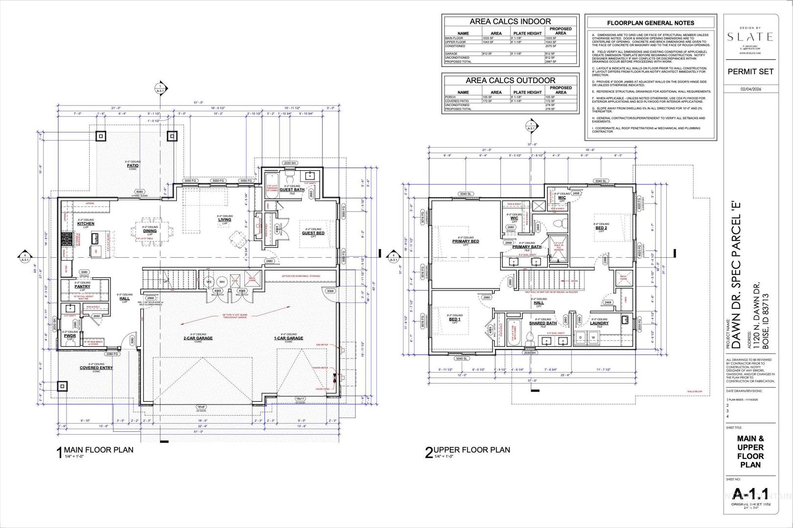
Two single family building lots. Both lots are fully serviced with utilities stubbed to the property (water/sewer/power/gas) and are ready for immediate building permit submittal. All frontage improvements are complete (curb/gutter/sidewalk). Zoned R1-C. Alley access from the south. Completed building plans for both parcels, available upon request. Ideal opportunity for a builder or investor looking for shovel-ready lots with minimal lead time. 1110 N Dawn Dr. - 0.18 acres (76’ x 104’) (R2024604578) 1120 N Dawn Dr. - 0.17 acres (65’ x 109’) (R2024604576)
Legal Description:
See Docs
See Docs
| Listing info for this property courtesy of exp Realty, LLC Information deemed reliable but not guaranteed. Buyer to verify all information. All properties are subject to prior sale, change or withdrawal. Neither listing broker(s), shall be responsible for any typographical errors, misinformation, misprints and shall be held totally harmless. |











