Property Search Details

8872 W Inspirado St Meridian, ID 83646

Directions

W on Chinden/Hwy 20-26, N on Can-Ada Rd

Price: $566,900
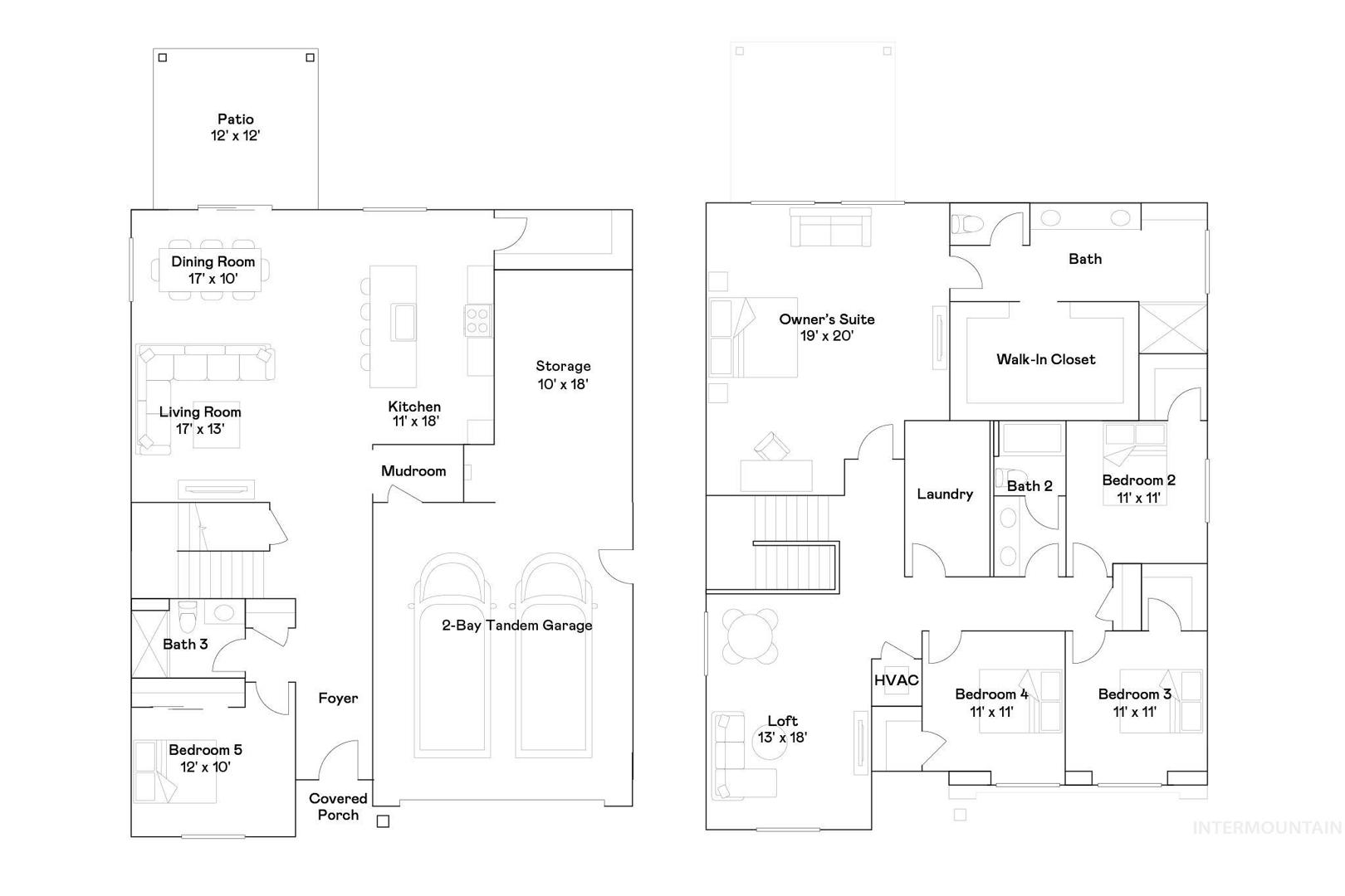
Beds: 5
Baths: 3
Garages: 2
Type: Single Family Residence
Area: Star - 0950
Land Size: Standard Lot 6000-9999 SF, Auto Sprinkler System,
SqFt: 3030
Age: Under Construction
Acres: 0.182
Garage Type: true
Subdivision: Heritage Heights
Year Built: 2026
Construction: Frame, HardiPlank Type

Includes

Air Conditioned: true
Water: City Service
Heating: Forced Air, Natural Gas

Schools

School District: West Ada School District
Sr High School: Owyhee
Jr High School: Star
Grade School: Pleasant View

Contact for more details:

A-Team Consultants
1099 S Wells St #200, Meridian, ID 83642
Phone: 208.761.1735   Email: info@ateamboise.com

Description

The Valley Series offers spacious two-story homes filled with modern features and timeless design. With Lennar’s Everything’s Included® package, enjoy stainless-steel appliances, refrigerator, washer/dryer, blinds, and full landscaping. The open kitchen boasts quartz countertops, a full backsplash, gourmet island, soft-close cabinetry, and pull-out trash bins. The owner’s suite features a walk-in shower with glass enclosure and dual vanities. Fully fenced yards, tankless water heaters, smart thermostats, and 9’ ceilings on the main level make the Valley Series a perfect blend of luxury and efficiency. Rockaway Cove is a charming pocket community in Kuna, nestled in the heart of the beautiful Treasure Valley. This neighborhood offers a new collection of single- and two-story homes on generous homesites. Enjoy the warmth of small-town living with convenient access to everything Boise has to offer.
Legal Description:
Lot 11, Block 05, in STARPOINTE SUB - NAISMITH COMMONS, Ada County, Idaho
Listing info for this property courtesy of  Lennar Sales Corp  Information deemed reliable but not guaranteed. Buyer to verify all information. All properties are subject to prior sale, change or withdrawal. Neither listing broker(s), shall be responsible for any typographical errors, misinformation, misprints and shall be held totally harmless.