21301 Cessna Ct Greenleaf, ID 83626
Directions
Simplot blvd. Rt Notus, Left Peckham, Rt Oakwood to Cessna Ct
Price: $795,000
Beds: 3
Baths: 2
Garages: 9
Type: Single Family Residence
Area: Greenleaf - 1294
Land Size: 10000 SF - .49 AC, Views
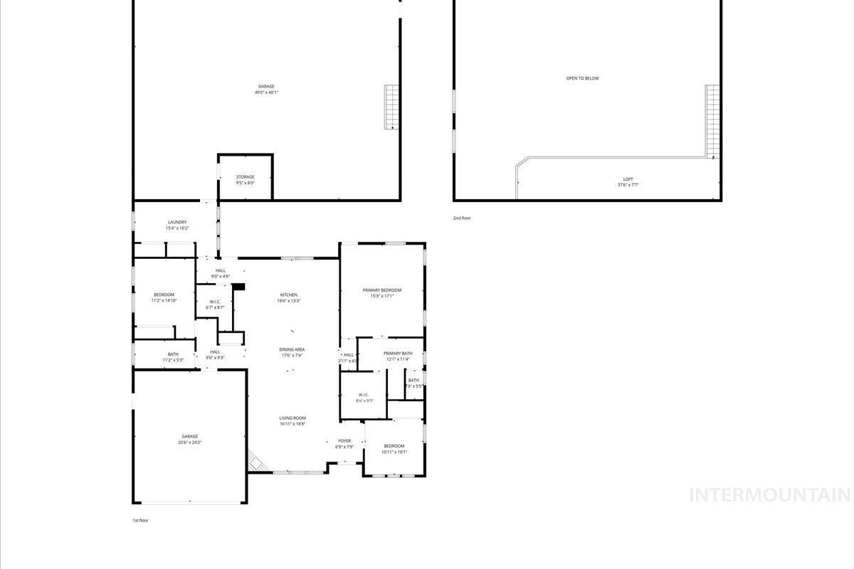
SqFt: 1930
Acres: 0.26
Garage Type: true
Subdivision: Greenleaf Air Ranch
Year Built: 2020
Construction: Stone
Lot Size: 137x81 x 137x81
Includes
Fireplace: Gas
Air Conditioned: true
Water: City Service
Heating: Forced Air, Natural Gas
Schools
School District: Vallivue School District #139
Sr High School: Vallivue
Jr High School: Vallivue Middle
Grade School: West Canyon
Contact for more details:
A-Team Consultants
1099 S Wells St #200, Meridian, ID 83642
Phone: 208.761.1735 Email: info@ateamboise.com
1099 S Wells St #200, Meridian, ID 83642
Phone: 208.761.1735 Email: info@ateamboise.com
Description
OPEN HOUSE 3/21 from 11-1PM - A RARE opportunity in Greenleaf Air Ranch, this property features a 50x36 heated attached hangar large enough for 7 cars, 2 bush planes, or 1 Cessna, plus additional trailer, RV, or boat parking — ideal for aviation enthusiasts, collectors, and anyone needing serious space. The hangar includes a 10,000 lb, 13-ft car lift. Enjoy direct access to the community airstrip with less than an hour flight to Sun Valley or the Frank Church Wilderness. Relax in the hot tub on the stamped concrete back patio, complete with a gas line plumbed for BBQ. Built in 2020, this 3 bed, 2 bath home offers approximately 1,930 sq. ft with vaulted ceilings in the great room and bright, open-concept living. The kitchen features a 5-burner gas stove and flows seamlessly into the dining and living areas. A finished attached 2-car garage adds additional function and storage. All just 40 minutes to downtown Boise or Ontario, Oregon, blending rural freedom with city convenience.
Legal Description:
16-4N-4W SW GREENLEAF AIR RANCH 2 LT 29 BLK 3
16-4N-4W SW GREENLEAF AIR RANCH 2 LT 29 BLK 3
| Listing info for this property courtesy of Keller Williams Realty Boise Information deemed reliable but not guaranteed. Buyer to verify all information. All properties are subject to prior sale, change or withdrawal. Neither listing broker(s), shall be responsible for any typographical errors, misinformation, misprints and shall be held totally harmless. |

















































