3136 N Kankakee Way Kuna, ID 83634
Directions
Ten Mile Rd, W on Hubbard Rd, S into Thunder Rock sub
Price: $444,950
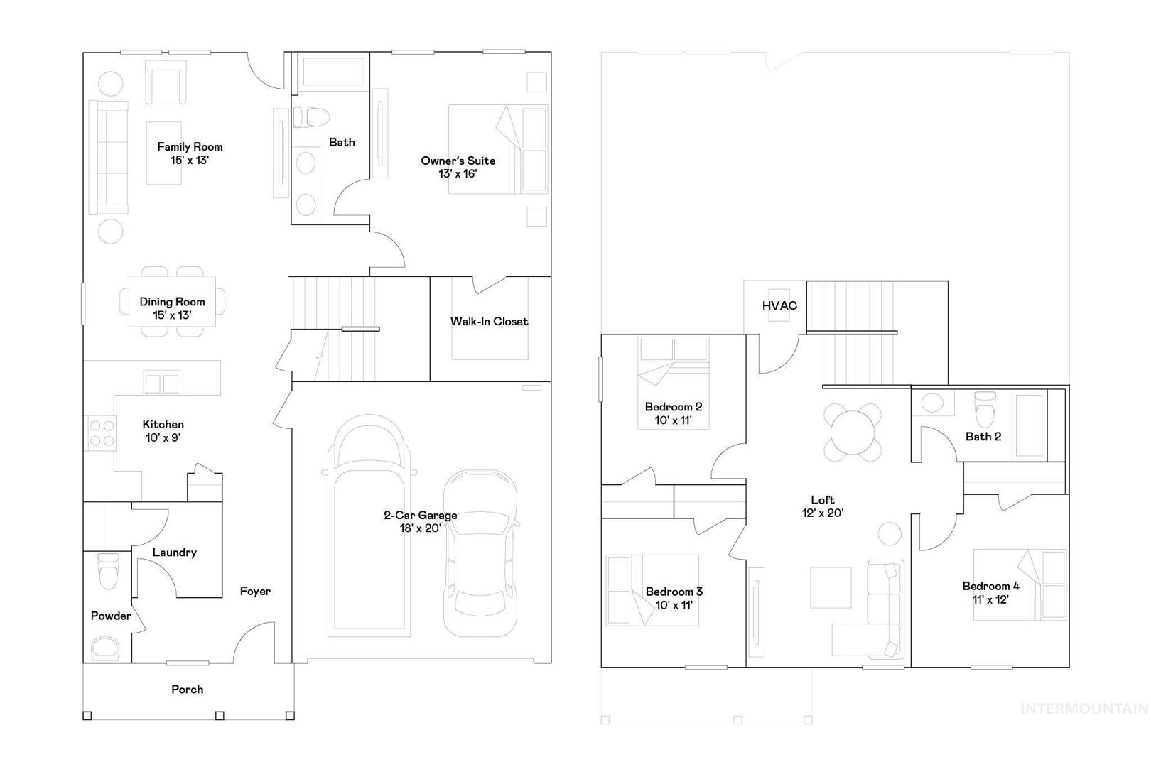
Beds: 4
Baths: 2
Garages: 2
Type: Single Family Residence
Area: Kuna - 1100
Land Size: Sm Lot 5999 SF, Auto Sprinkler System, Full Sprink
SqFt: 1874
Age: Under Construction
Acres: 0.118
Garage Type: true
Subdivision: Thunder Rock
Year Built: 2026
Construction: Frame, HardiPlank Type
Includes
Air Conditioned: true
Water: City Service
Heating: Forced Air, Natural Gas
Schools
School District: Kuna School District #3
Sr High School: Kuna
Jr High School: Kuna
Grade School: Indian Creek
Contact for more details:
A-Team Consultants
1099 S Wells St #200, Meridian, ID 83642
Phone: 208.761.1735 Email: info@ateamboise.com
1099 S Wells St #200, Meridian, ID 83642
Phone: 208.761.1735 Email: info@ateamboise.com
Description
Welcome to the American Dream Series—where comfort meets value. With Lennar’s signature Everything’s Included® package, each home features a stainless-steel refrigerator, washer and dryer, window blinds, and full landscaping. The modern kitchen includes quartz countertops, white Shaker-style cabinetry, and stainless-steel appliances. Luxury vinyl plank flooring extends through the kitchen and bathrooms, paired with chrome finishes throughout. Additional highlights include a tankless water heater, garage keypad, and full aluminum gutters, offering style and efficiency in every detail. In Thunder Rock, enjoy small-town charm with easy access to Boise, plus community amenities like a playground, open space and walking paths.
Legal Description:
Lot 15, Block 01, in Ewing Meadows Sub, Ada County, Idaho
Lot 15, Block 01, in Ewing Meadows Sub, Ada County, Idaho
| Listing info for this property courtesy of Lennar Sales Corp Information deemed reliable but not guaranteed. Buyer to verify all information. All properties are subject to prior sale, change or withdrawal. Neither listing broker(s), shall be responsible for any typographical errors, misinformation, misprints and shall be held totally harmless. |























