24897 Ardmore Ct Caldwell, ID 83607
Directions
Head E from I-84 Exit 25 Hwy 44, N on Old Hwy 30, E on Willis, N on Freezeout, E on Purple Sage
Price: $1,239,000
Beds: 3
Baths: 3
Garages: 4
Type: Single Family w/ Acreage
Area: Caldwell NW - 1275
Land Size: 1 - 4.99 AC, Garden, Horses, Irrigation Available,
SqFt: 2908
Age: Under Construction
Acres: 1.17
Garage Type: true
Subdivision: Spring Hill Ranch
Year Built: 2026
Construction: Masonry, Stone, HardiPlank Type
Lot Size: 345x148 x 345x148
Includes
Fireplace: Gas
Air Conditioned: true
Water: Well
Heating: Forced Air, Natural Gas
Schools
School District: Middleton School District #134
Sr High School: Middleton
Jr High School: Middleton Jr
Grade School: Purple Sage
Contact for more details:
A-Team Consultants
1099 S Wells St #200, Meridian, ID 83642
Phone: 208.761.1735 Email: info@ateamboise.com
1099 S Wells St #200, Meridian, ID 83642
Phone: 208.761.1735 Email: info@ateamboise.com
Description
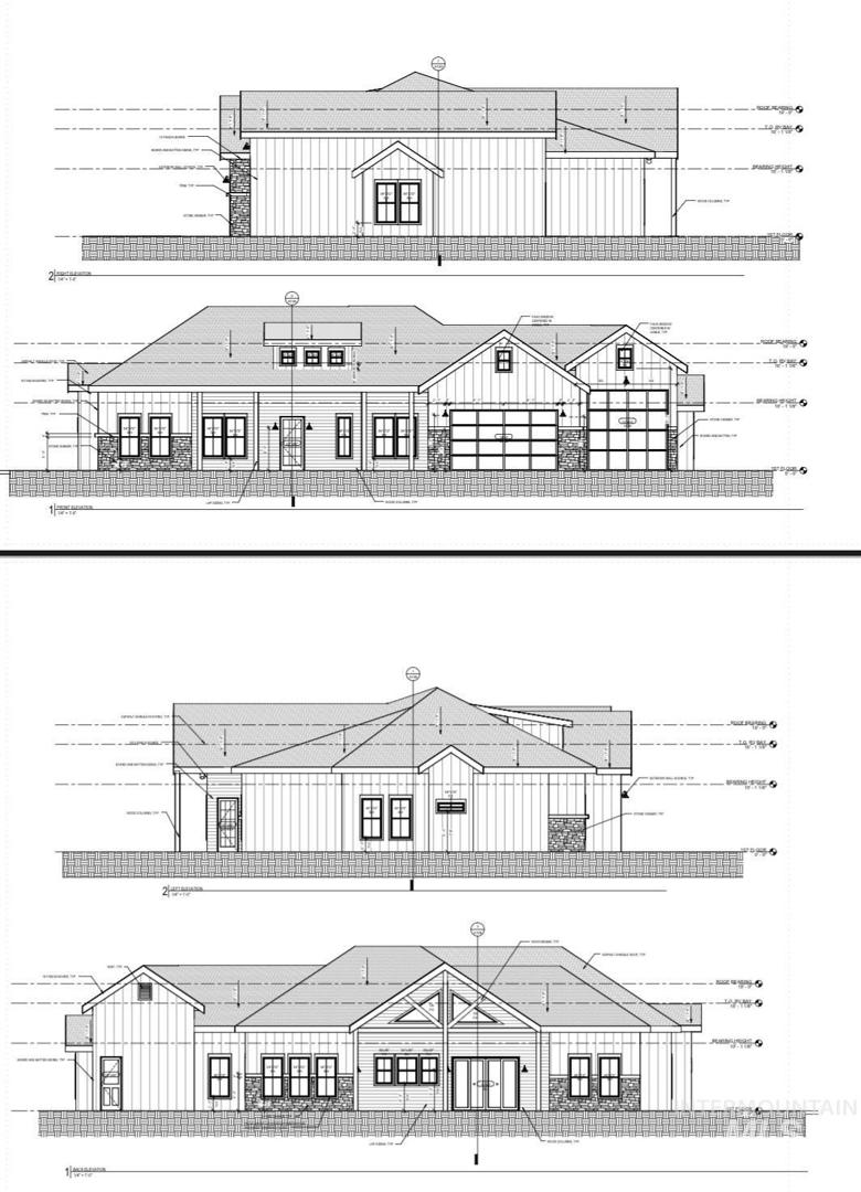
Come Enjoy the Idaho Experience Living in the sought-after Spring Hill Ranch Community! This stunning new construction home sits on a full acre with incredible views, blending luxury with everyday functionality. Featuring 3 bedrooms, 3.5 baths, office and an 8-car insulated, painted garage with a 54’ RV bay, there’s plenty of room for all your vehicles and storage. Inside, you’ll find quartz countertops, matte black fixtures, and LVT flooring, all highlighted by soaring 10’+ ceilings. The gourmet kitchen boasts stainless steel appliances, a gas range, double ovens, and a butler’s pantry. The open-concept great room showcases a vaulted ceiling and stone fireplace, with direct access to a covered patio for indoor-outdoor living. Great for entertaining! The primary suite offers coffered ceilings, a walk-in tiled shower, soaking tub, dual vanities and dual walk-in closets. Located minutes to Exit 25, Purple Sage Golf Course, and down downtown Middleton!
Legal Description:
34-5N-3W NE SPRING HILL RANCH LT 7 BLK 1
34-5N-3W NE SPRING HILL RANCH LT 7 BLK 1
| Listing info for this property courtesy of 208 Real Estate Information deemed reliable but not guaranteed. Buyer to verify all information. All properties are subject to prior sale, change or withdrawal. Neither listing broker(s), shall be responsible for any typographical errors, misinformation, misprints and shall be held totally harmless. |
















































