Property Search Details

2613 7th Ave N Payette, ID 83661

Directions

From Fruitland take Hwy 95 to &th Ave N turn Right to address.

Price: $825,000
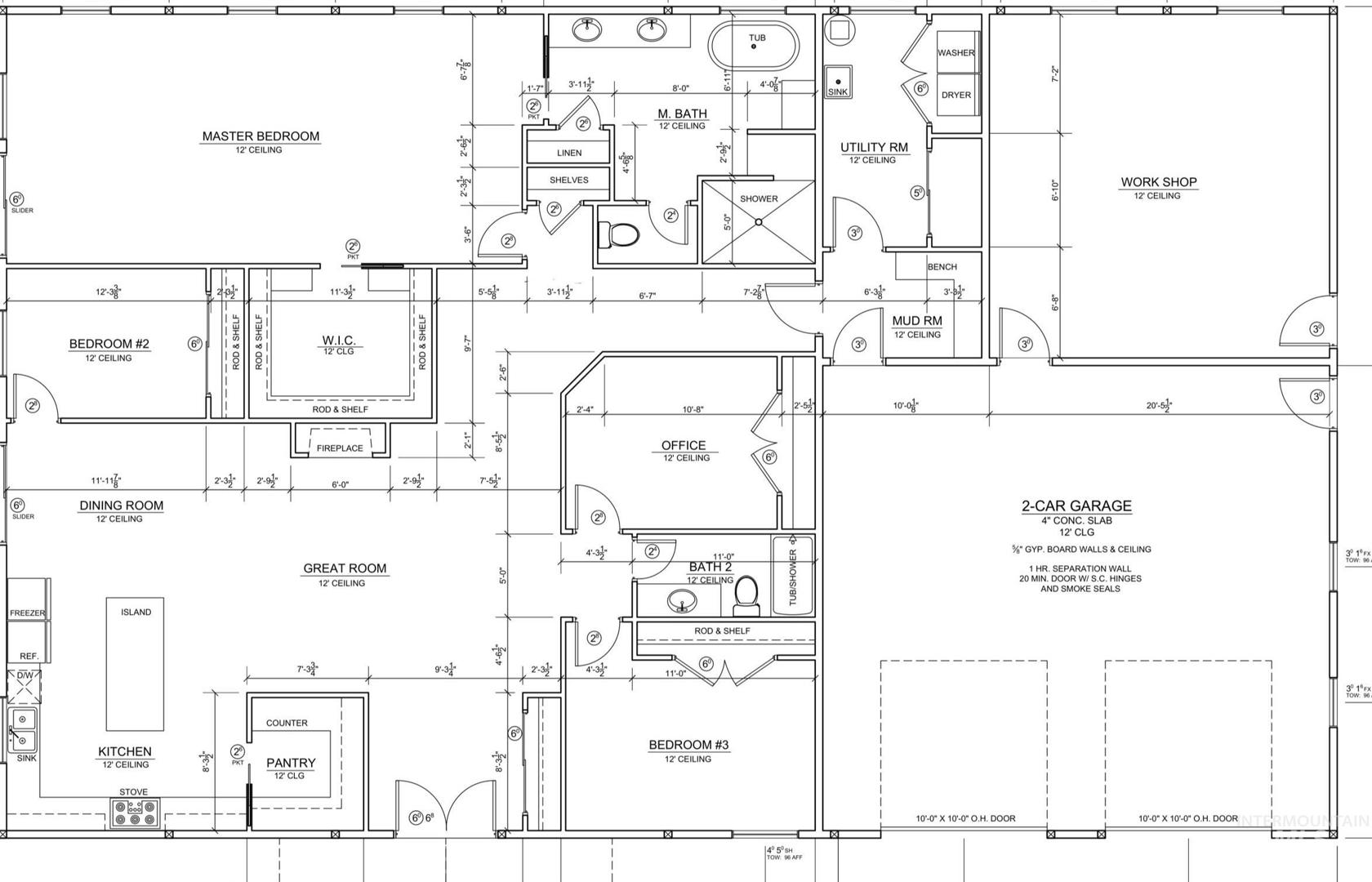
Beds: 3
Baths: 2
Garages: 5
Type: Single Family w/ Acreage
Area: Payette - 1750
Land Size: 1 - 4.99 AC, Horses
SqFt: 2693
Age: Under Construction
Acres: 1
Garage Type: true
Subdivision: 0 Not Applicable
Year Built: 2026
Construction: Insulation, Frame, Wood Siding

Includes

Fireplace: Propane
Air Conditioned: true
Water: Well
Heating: Electric, Ductless/Mini Split

Schools

School District: Payette School District #371
Sr High School: Payette
Jr High School: McCain
Grade School: Payette

Contact for more details:

A-Team Consultants
1099 S Wells St #200, Meridian, ID 83642
Phone: 208.761.1735   Email: info@ateamboise.com

Description

Discover your dream home—custom built and set on just under an acre! This spacious home welcomes you with a bright open floor plan designed for comfortable living and entertaining. The beautiful kitchen features rich cherry wood cabinetry, solid surface countertops, and flows seamlessly into the great room, where a cozy propane fireplace creates the perfect gathering space. Quality craftsmanship is found throughout, including engineered wood flooring, tile entry, cherry cabinetry in the bathrooms and utility room, solid knotty wood doors and trim, and impressive 10-foot ceilings that add to the home`s open feel. Step outside and relax on the expansive wrap-around porch, perfect for enjoying peaceful mornings or evening sunsets. Additional upgrades include instant hot water with a softener, durable cedar siding, and a long-lasting metal roof. Need space for vehicles, toys, or a workshop? The massive 1,951 sq. ft. garage features an RV bay and room for up to five vehicles—plenty of space for all your needs. Construction is currently underway, and with an early offer you may still have the opportunity to choose some colors and finishing touches to make this home truly your own. Posted plans are similar to actual plans.
Legal Description:
Lot 17 in Block 3 of Goff Subdivision
Listing info for this property courtesy of  Homes of Idaho  Information deemed reliable but not guaranteed. Buyer to verify all information. All properties are subject to prior sale, change or withdrawal. Neither listing broker(s), shall be responsible for any typographical errors, misinformation, misprints and shall be held totally harmless.