812 Jack Ave Jerome, ID 83338
Directions
North Tiger to 1st or 2nd and turn West until it runs into Hayes. Jerome Cross. is on the west
Price: $380,000
Beds: 4
Baths: 2
Garages: 2
Type: Townhouse
Area: Jerome - 2030
Land Size: Standard Lot 6000-9999 SF, Corner Lot, Cul-De-Sac
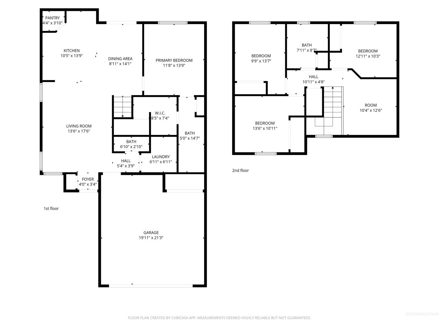
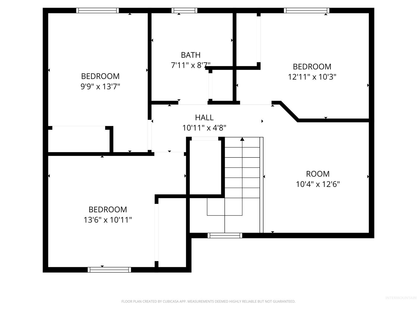
SqFt: 1772
Acres: 0.16
Garage Type: true
Subdivision: 0 Not Applicable
Year Built: 2023
Construction: Stone, Stucco, Vinyl Siding
Includes
Air Conditioned: true
Water: City Service
Heating: Forced Air, Natural Gas
Schools
School District: Jerome School District #261
Sr High School: Jerome
Jr High School: Jerome
Grade School: Horizon Jerome
Contact for more details:
A-Team Consultants
1099 S Wells St #200, Meridian, ID 83642
Phone: 208.761.1735 Email: info@ateamboise.com
1099 S Wells St #200, Meridian, ID 83642
Phone: 208.761.1735 Email: info@ateamboise.com
Description
Discover this beautiful 1,772 sq. ft. townhome located in a private subdivision in Jerome. This spacious loft-style home offers 4 bedrooms and 2.5 bathrooms with a bright, open-concept design that feels both modern and inviting. The interior features durable LVP flooring, stainless steel appliances, and a stylish kitchen perfect for everyday living or entertaining. The primary bedroom is conveniently located on the main floor, providing added comfort and functionality. Enjoy low-maintenance living with front landscaping already installed and a vinyl-fenced backyard. The subdivision includes concrete roads and pressurized irrigation, offering the benefits of a well-maintained private community. This move-in ready townhome is a great option for first-time buyers, investors, or those looking to downsize, and would make an excellent rental property as well.
Legal Description:
Tax 2301671 Of Lot 5 Block 1 Jerome Crossing Sub Sec 18 T8 R17 6,943 Sqft
Tax 2301671 Of Lot 5 Block 1 Jerome Crossing Sub Sec 18 T8 R17 6,943 Sqft
| Listing info for this property courtesy of Sweet Group Realty Information deemed reliable but not guaranteed. Buyer to verify all information. All properties are subject to prior sale, change or withdrawal. Neither listing broker(s), shall be responsible for any typographical errors, misinformation, misprints and shall be held totally harmless. |
















































